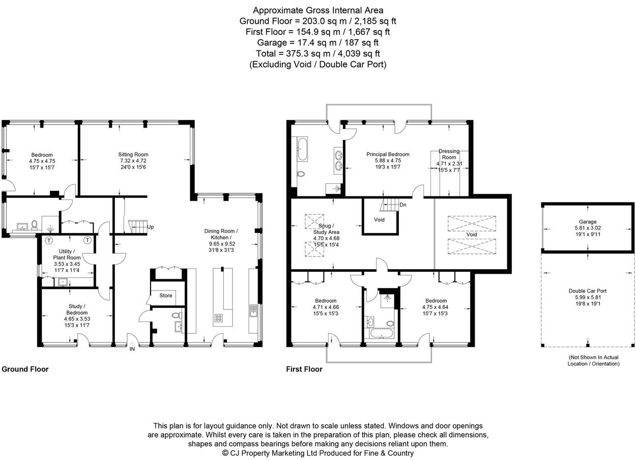
Finches is one of approx. 300 HUF HAUS’S in the UK and was created by the owners with the expert design and efficiency skills offered by this prestigious house builder. Completed in 2019, no stone has been left unturned in creating a remarkable home surrounded by a picturesque landscaped garden. As one would expect from the amount of glass utilised in the construction, the property is flooded with natural light and provides modern and contemporary living at its best. There is a large open plan kitchen, dining, sitting room which spans from the front of the property to the rear. The kitchen has a large central island with a breakfast bar, perfect for entertaining whilst one prepares a meal, and all the integrated appliances are Miele. The dining area has a double height ceiling which really enhances the feeling of light and space that Finches offers. The sitting room is to the rear of the property and is open plan to the kitchen, dining room creating an enormous space to entertain. The owners, keen to future proof the property for their own long term requirements, built into the design two further reception rooms and a shower room on the ground floor which could be utilised as bedrooms in later years. Completing the ground floor accommodation there is a utility/ plant room, cloakroom and walk in boot and coat cupboard. Stairs rise up to the enormous first floor landing which looks down to the dining area. This vast space is currently used as a snug / exercise area however, has been designed so that a further double bedroom can easily be created on the first floor if required. From the landing, the principal bedroom is to the rear aspect with views of the garden and National Trust woodland beyond. This impressive bedroom has a large balcony, vaulted ceiling, dressing room and a spacious ensuite with separate shower and bath. There are two further double bedrooms with a shared balcony and a bathroom.
Outside is wonderfully picturesque; the gardens have been comprehensively landscaped with an array of mature hedges and trees brought in during construction which provide superb privacy. The property is approached via electric operated gates which lead onto a resin bonded gravel driveway. To the front there is a double car port and single garage. The rear garden has a large lawn and a generous patio accessed from the kitchen dining room. There is another seating area to the front of the property, where one can enjoy the sunsets in the warmer months. A gate to the rear allows direct access into the National Trust woodland and provides a ‘short cut’ to the locally renowned pub, The Alford Arms, approx. 15 mins walk.
Frithsden Copse is a private residential road situated approx. 1 mile from Berkhamsted High Street yet is nestled in the National Trust’s Ashridge Estate with Berkhamsted Golf course to the southerly side.
Schools
Berkhamsted offers an array of excellent primary schools. For secondary education, the state-funded Ashlyns School is highly regarded, while Berkhamsted School provides private education from nursery through to A-levels.
Local Amenities
The town features extensive shopping facilities, including independent local shops and boutiques, as well as supermarkets like Waitrose and an M&S Food Hall. Dining options are plentiful, with many restaurants, bistros, and pubs. Berkhamsted also hosts Wednesday and Saturday markets, adding to the charm of this vibrant town. Sports and recreational facilities are superb, with a tennis club, cricket club, and the renowned Ashridge Golf Club nearby. The National Trust Ashridge Estate offers approximately 5,000 acres of protected woodland for walking, biking, or horse riding.
Transport
A mainline railway station in the centre of Berkhamsted provides direct access to London Euston in approximately 32 minutes. The A41 dual carriageway is easily accessed from the town, providing access to M25 Junction 20 (approximately 7 miles).
Services: Air source heat pump, mains electricity, mains water, and private drainage.
Local Authority: Dacorum Borough Council
Council Tax Band: H
HUF HAUS is the European market leader for modern post-and-beam architecture. A German company that have been around for over 100 years. Their iconic glass and timber buildings are highly energy efficient both in design and due to their utilisation of the latest renewable energy technologies. Designed for luxury, sustainability, and well-being, the home’s floor-to-ceiling windows flood the interiors with natural light while maintaining exceptional insulation, airtightness, and energy efficiency.
HUF HAUS homes are bold and elegant, offer open plan living at its finest, and are entirely individual. A simply breathtaking home … A German architectural masterpiece!
A.M.L Identity Verification
In line with UK Anti Money Laundering (AML) regulations, we are obligated to verify the identity of all prospective purchasers once an offer has been accepted. To carry out this process, we use a trusted third-party identity verification system. A nominal fee of £45 + vat per person applies for this service.
To make an appointment to view Frithsden Copse, please fill in the form below.
Alternatively please call us on 01442 877627 during office hours.


