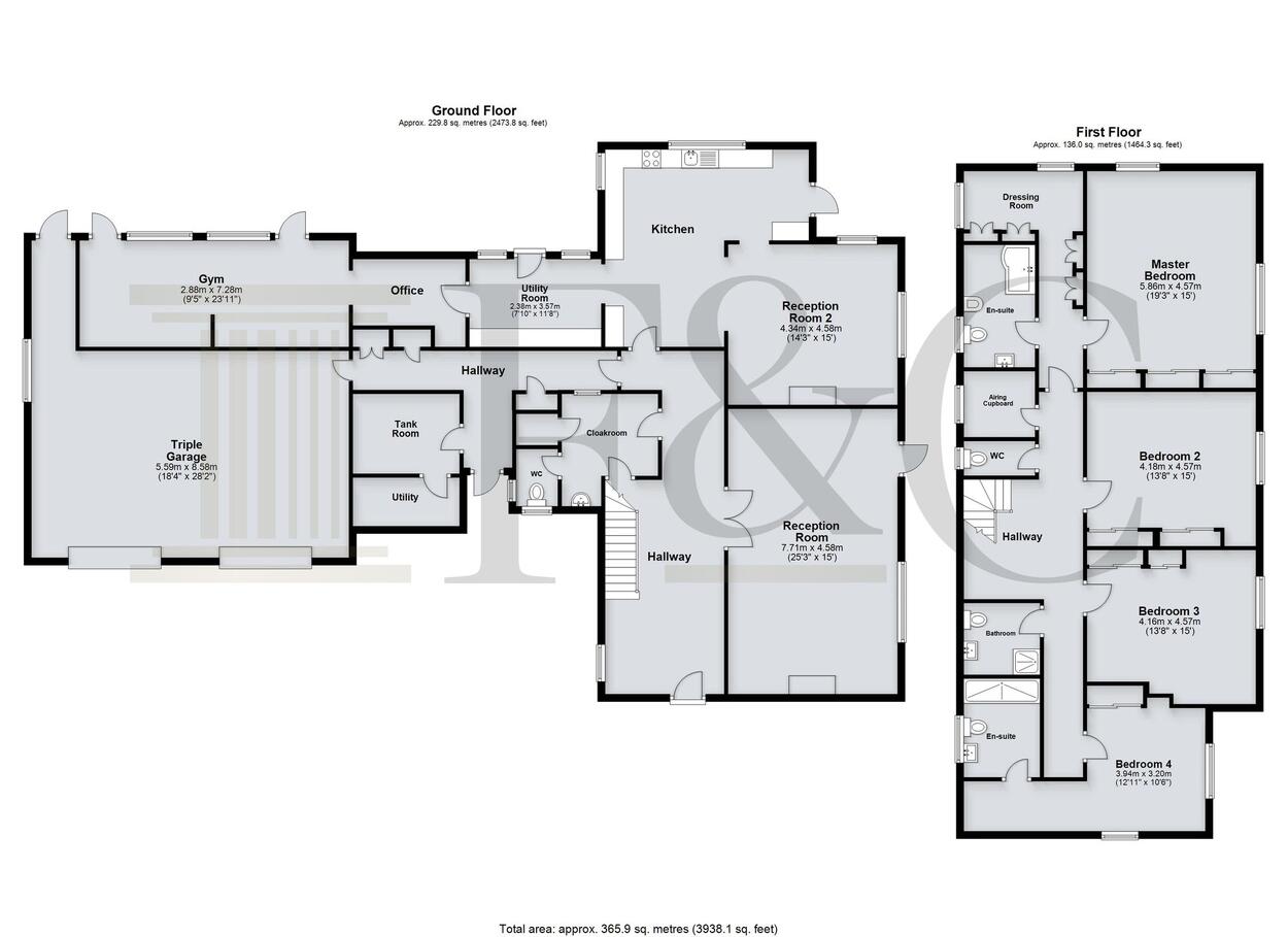
Available NOW - Fine & Country are please to present this impressive FOUR BEDROOM DETACHED HOME, located in a highly sought after and private setting. Set well back from the road via a long driveway, this substantial property offers exceptional privacy and tranquillity. The spacious accommodation features four generous double bedrooms, each thoughtfully designed to provide comfort and versatility, complemented by four well appointed bathrooms, ensuring convenience for families or guests. The heart of the home is the large, fully fitted kitchen with a dedicated dining area, ideal for both every-day living and entertaining (please note, the Aga oven is decorative only). The flexible layout includes a bright sun room, which can be adapted as a gym or relaxation space, offering further options to suit your lifestyle. The property benefits from a triple garage and ample parking for several cars. Regular garden maintenance is included in the rent, ensuring the beautifully maintained surroundings remain pristine throughout the year. Situated in an exclusive location, this home combines the advantages of peaceful seclusion with easy access to local amenities, reputable schools, and transport links. This property is perfectly suited for those seeking a spacious, well maintained family home in a prestigious area. Early viewing is highly recommended. Unfurnished.
Five week deposit = £6,346
To make an appointment to view Frithsden Copse, please fill in the form below.
Alternatively please call us on 01442 877627 during office hours.


